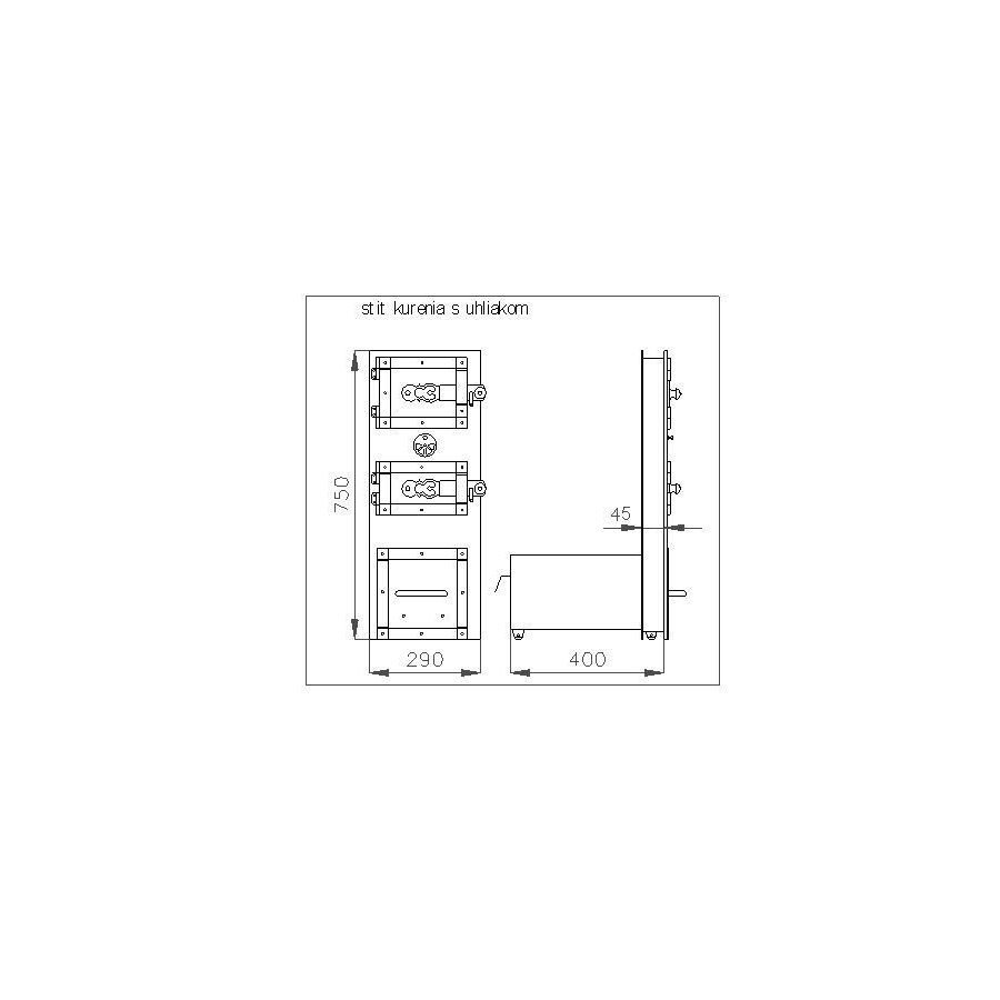
Štíty kúrenia s uhliakom
Štít kúrenia s uhliakom
Pozostáva z prikladacích a popolníkových dvierok + uhliak
Štíty kúrenia majú zdvojené prikladacie dvierka. Vonkajšie sú vyhotovené z nehrdzavejúcej ocele. Vnútro – liatinové dvierka so sklotextilným tesnením sú osadené v liatinovom ráme. Otvárajú sa obe súčasne. Pánt na dvierkach môže byť vpravo alebo vľavo.
Súčasťou štítu kúrenia s uhliakom je aj vnútorný ant.popolník š/dl/v: 210x400x70 mm
Štít kúrenia s uhliakom
| Výška: | 750 mm | |
| Šírka: | 290 mm | |







